Concurso nacional de anterproyectos: Edificio de oficinas, auditorio y salas de reuniones para la Honorable Legislatura de la provincia de Mendoza
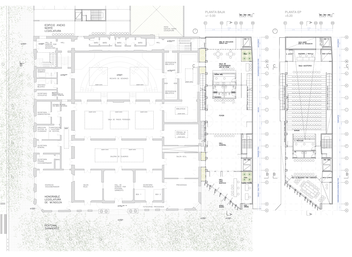
El edificio correspondiente a la Honorable Legislatura de la Provincia de Mendoza ha recibido una serie sucesiva de intervenciones arquitectónicas y programáticas desde su origen como Club Social hasta la actualidad.
El presente edificio constituirá probablemente una de las etapas finales en la construcción de dicho conjunto arquitectónico e institucional. De esta manera el Edificio para oficinas, auditorio y salas de reuniones que se expresa en esta propuesta no se presenta como un hecho aislado sino como un componente más de un hecho urbano y arquitectónico articulado.
Descripción
Honorable legislatura de Mendoza.
RSCHR + BBC + Julian Cortes
Autores: Ramiro Schere – Angela Bielsa – Luciana Breide – Manuel Ciarlotti Bidinost – Julian Cortes .
Colaboradores: Arq. Nicole Waimblum.
Asesor en estructura: Ing. Sebastián Laprida.
Promotor: CAMZA.
Organizador: FADEA.
Año: 2017.






