Naranja Mecánica.
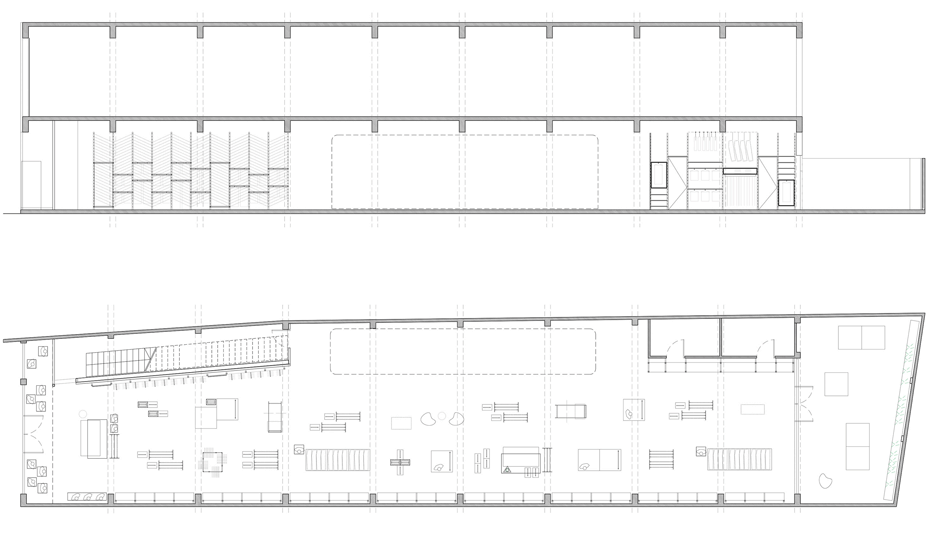
El espíritu de este encargo se centra en la cualificación espacial de un ámbito indeterminado. Para ello se utiliza un elemento, el cual llamaremos jaula, proveniente de materiales industrializados propios de un lenguaje ya desarrollado, la cual será la encargada de articular la nave, su recorte y el patio.
La jaula, entonces, jerarquiza el espacio interior al mismo tiempo que potencia la perspectiva. Este objeto fue diseñado para estructurar longitudinalmente el espacio y orientar de esta forma, las miradas hacia el exterior.
La jaula es un sistema autónomo, todo lo que no se exhibe sucede allí.
Descripción
Obra: Local Catamarca-La Naranja Mecánica.
Autores: Angela Bielsa – Luciana Breide – Manuel Ciarlotti Bidinost.
Ubicación: Rivadavia 540, San Fernando del Valle de Catamarca, Catamarca.
Superficie: 425m².
Año: 2015.









