Local Roca.
El encargo estipula la construcción de locales comerciales en el área céntrica de la ciudad de General Roca en la Provincia de Río Negro.
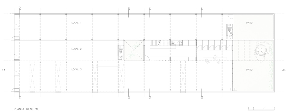
Se resuelven tres unidades comerciales de distinta jerarquía, por un lado, las dos unidades subsidiarias de menor escala deberán ser efímeras, completadas por una tercera de determinación total.
Este edificio se construye como un cuerpo rectangular articulado, permitiendo de esta manera trabajar la secuencias propias del espacio del local principal a través de los enmarques de patios y el apoyo de las proyecciones de lucarnas. De esta manera se logra regular el recorrido y cualificar los espacios transversales demarcados por la separación entre los apoyos y cerramientos. El espacio posterior al patio central ocupará los depósitos y cambiadores liberando de esta manera una perspectiva diáfana.
La fachada del edificio se presenta como una única pieza compacta asimétrica conformada por un bastidor independiente forrado en chapa y vidrio capaz de responderá naturalmente las distintas especificaciones y requerimientos de cada local.
Hacia el interior se refuerza el lenguaje de filos que será expuesto en la totalidad de la obra sintetizando el sistema constructivo y la variación material de la misma.
Las bajas precipitaciones de la zona permiten el desarrollo de un techo tipo mariposa de pendiente hacia el centro, logrando disponer de las dobles alturas en los sitios adecuados, así como el correcto enrase hacia los linderos.
El modo resolutivo y la imaginería adoptada se verán reflejados en los sucesivos locales de la marca comitente, tomando como referencia este prototipo.
Descripción
Ubicación: Tucumán 668, General Roca, Río Negro.
Año: 2012
Superficie: 600 m²
D.I: Rodrigo Ebel
D.O: Arq. Fernando Caceras.









