Ping Pong Pavilion.
El Ping Pong Pavilion se encuentra en el barrio el Trébol, en las afueras de la ciudad de Bariloche, y es parte de la serie llamada PPP.
Los usuarios, dos grandes amigos muy indecisos, desean construir un espacio flexible que permita funcionar esporadicamente de hogar, el cual presente las características propias de un quincho con espacio de ping pong. Algunos vecinos ya lo llaman “el estadio”.
Entre las intenciones de los usuarios y la escasa disponibilidad de dinero se utiliza el reglamento de ping pong para estudiar los distintos balances de superficies para el correcto desarrollo del juego.
Una vez determinadas las superficies surgen nuevas dudas, también aparecen mas usos; al asador, cocina, habitación y microestadio se le suma una palestra!. El interior del techo comienza a ser un espacio de proyecto y uso.
Las distintas idas y vueltas del proyecto y las indeterminaciones de todo lo ajeno al espacio de juego nos van haciendo entender a todos que se trata de una obra de un fuerte carácter de flexibilidad y adaptación, algo a lo que los arquitectos no estamos muy acostumbrados.
Surge esta metodología de trabajo cual catalogo de ir escogiendo distintos sistemas en cuanto la obra avanza, mas que nada porque las oportunidades se van presentando en el transcurso de la misma, sin dejar de lado el intento de poder llegar con el presupuesto tan escaso.
Se presenta una red de opciones desde fundaciones hasta revestimientos y mobiliario donde se van incorporando al proyecto las opciones posibles en cuanto a economía o disponibilidad.
Descripción
Autores: Angela Bielsa-Luciana Breide-Manuel Ciarlotti Bidinost.
Ubicación: barrio el Trebol, Circuito Chico, Bariloche, Rio Negro.
Año de proyecto: 2018.
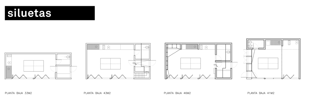
Superficie: 46 m²
D.O: Baru Gerardi+Bruno Gerardi










